San Miguel Port- Building for the future Can Montaña

FEATURES
TYPE
Villa
TOWN
Puerto de San Miguel
ROOMS
6
BATHS
7
SURFACE
793 m2
PLOT
1700 m2
PRICE
7.950.000 €
OTHER FEATURES
Cerca del mar, License to build, heating air conditioning, heating underfloor heating, built-in closets, furnished kitchen, equipped kitchen, doble glazing, outside, garden, lift, bright, swimming pool, terrace

DESCRIPTION

San Miguel- Building for the future Can Montaña

With Can Caliza, Can Laurena and Can Montaña we want to meet the highest standards in design and sustainability, using modern consistent technology combined with handmade and locally selected materials.

Overlooking the Bay of San Miguel, each property will have its special character and stand out individually, in quality and creativity.

Find your dream home, contact us today.

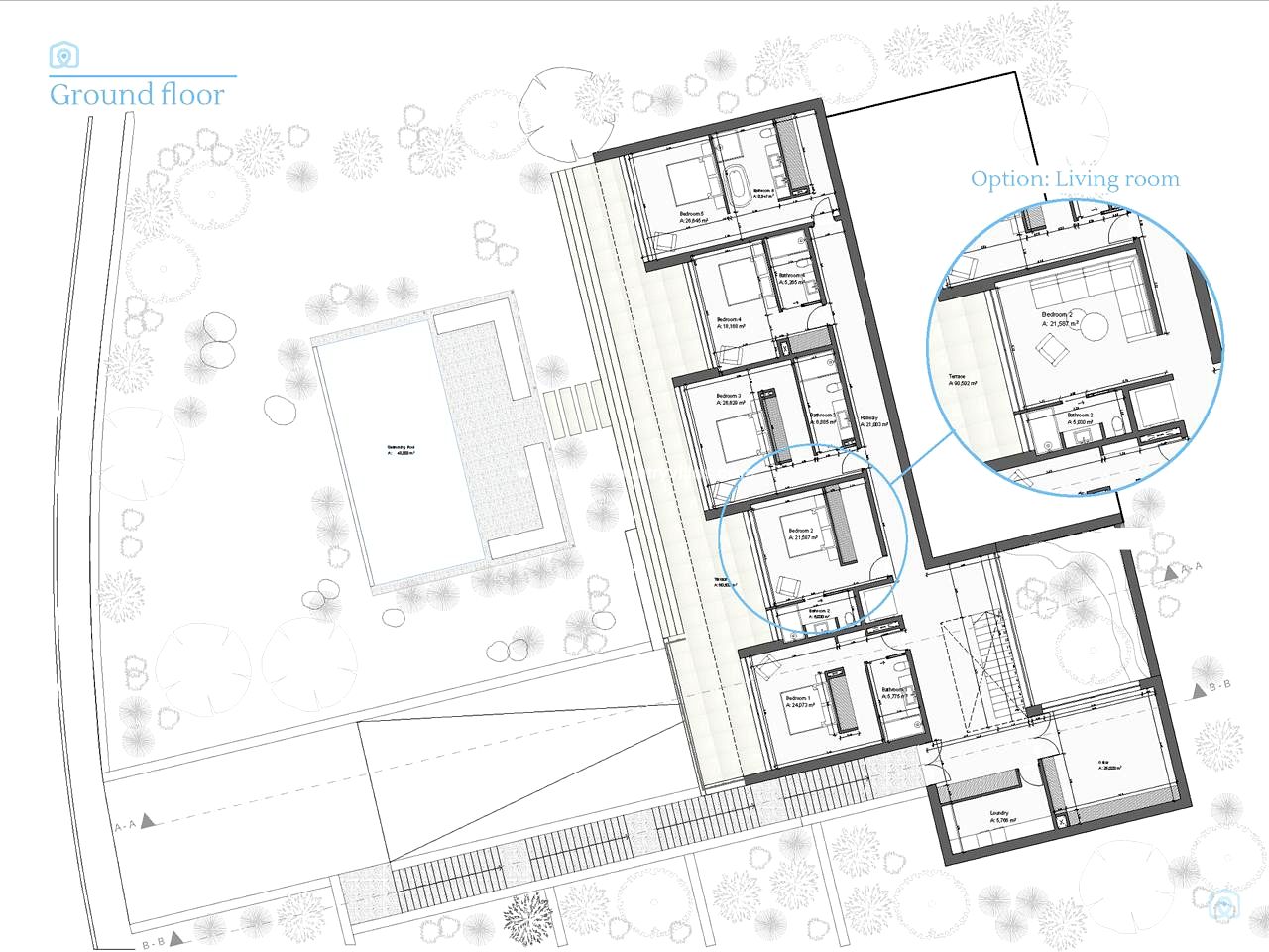
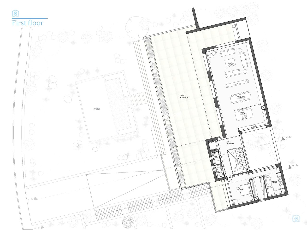
CAN MONTAÑA

6 bedrooms, 6,5 bathrooms
Plot: 1701 m2
Built area: 734,99 m2
Built area pool: 58,02 m2
Useful interior: 543,33 m2
Useful exterior: 416,72 m2
Useful pool: 48,18m2

Electricity Main red/solar panels
Agua Main red/ rain water cistern
Layout Ground floor, 1st floor,
lower floor/garage
Distribution 1 x Masterbedroom
5 x Double bedrooms
Open plan kitchen
Living room & dining area
Utility room
Lift
Outdoor Swimming pool
Different terraces

PROJECT DETAILS
Built area villa 734,99 m2
Built area pool 58,02 m2
Total Built area 793.01 m2
Useful interior house 420,35 m2
Useful interior basement 122,98 m2
Total useful interior 543,33 m2
Useful exterior area 416,72 m2
Useful pool area 48,18 m2
Total useful exterior 464,90 m2

LOCATION
Puerto de San Miguel
ASK FOR MORE INFO

SIMILAR PROPERTIES

Share this page
Privacy Overview

This website uses cookies so that we can provide you with the best user experience possible. Cookie information is stored in your browser and performs functions such as recognising you when you return to our website and helping our team to understand which sections of the website you find most interesting and useful.